SS9
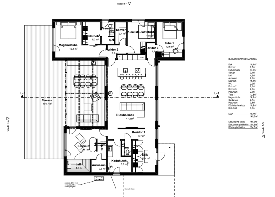
Majatüüp SS9 on läbimõeldud ja modernne elamu netopinnaga 154,6 m². Planeering on jaotatud kaheks selgelt eristuvaks funktsionaalseks plokiks, mis tagab mugava ja loogilise ruumikasutuse nii igapäevaeluks kui ka lõõgastumiseks.
_Tehnilised andmed
Funktsionaalne planeering
Ühes plokis paiknevad magamistoad. Vastavalt vajadusele on võimalik master bedroom’ile luua eraldi sissepääs ning suunata ülejäänud kahe magamistoa sissepääs köögiala teisele poole, tagades parema privaatsuse ja ruumilahenduse paindlikkuse.
Magamistubade ploks asub ka eraldi sahver, mis pakub praktilist hoiuruumi ning aitab hoida igapäevase elukorralduse korrastatuna. Sahvrisse saab siseneda nii peidetud köögimööbli lahendusest, kui eraldi uksega.
Funktsionaalne planeering
Ühes plokis paiknevad magamistoad. Vastavalt vajadusele on võimalik master bedroom’ile luua eraldi sissepääs ning suunata ülejäänud kahe magamistoa sissepääs köögiala teisele poole, tagades parema privaatsuse ja ruumilahenduse paindlikkuse.
Magamistubade ploks asub ka eraldi sahver, mis pakub praktilist hoiuruumi ning aitab hoida igapäevase elukorralduse korrastatuna. Sahvrisse saab siseneda nii peidetud köögimööbli lahendusest, kui eraldi uksega.
Teises plokis paiknevad avar esik, eraldi tualettruum, tehnoruum ning puhkeala. Kolme magamistoaga variandis on siia planeeritud mahukas SPA-ala, kuhu kuuluvad dušš, vann, traditsiooniline Soome saun ja aurusaun – ideaalne kodune spaakogemus aastaringseks kasutamiseks.
Nelja magamistoaga variandis on selles plokis tehtud muudatus, kus SPA-ala ja tehnolahenduse ümberkohandamise arvelt on lisatud täiendav magamistuba. Samal ajal on säilitatud SPA-ala peamised mugavused – dušš, vann ja Soome saun –, pakkudes rohkem ruumi perele või külalistele.
Teises plokis paiknevad avar esik, eraldi tualettruum, tehnoruum ning puhkeala. Kolme magamistoaga variandis on siia planeeritud mahukas SPA-ala, kuhu kuuluvad dušš, vann, traditsiooniline Soome saun ja aurusaun – ideaalne kodune spaakogemus aastaringseks kasutamiseks.
Nelja magamistoaga variandis on selles plokis tehtud muudatus, kus SPA-ala ja tehnolahenduse ümberkohandamise arvelt on lisatud täiendav magamistuba. Samal ajal on säilitatud SPA-ala peamised mugavused – dušš, vann ja Soome saun –, pakkudes rohkem ruumi perele või külalistele.
Tehnilised lahendused
Kõik Thörni majad vastavad A- või B-energiaklassile ning on loodud pakkuma kaasaegseid, energiasäästlikke ja keskkonnasõbralikke elamistingimusi. Õhksoojuspumba baasil vesipõrandaküte ja soojustagastiga ventilatsioon tagavad mugava sisekliima ning madalad küttekulud aastaringselt, soovi korral lisame ka päikesepaneelid ja vihmavee kogumismahutid. Majad on ehitatud looduslikest taastuvatest materjalidest nagu puit ja klaas, mille süsiniku jalajälg on märkimisväärselt väiksem võrreldes alternatiivsete ehitusmaterjalidega, ning kasutatud vastupidavad ja hästi isoleerivad lahendused vastavad tänapäevastele energiatõhususe standarditele.
Ajatu siseviimistlus
Suured klaaspinnad, kõrged laed ning avarad terrassid ühendavad Thörni majad looduse ja loomuliku valgusega. Viimistluses kasutatud ajatu stiil loob ühtse terviku nii sisekujunduses kui välisilmes. Sinu Thörni projekti hinna sisse kuulub kaks standardlahendust ja lisatasu eest kolm Premium siseviimistluspaketti. Pakette on võimalik kombineerida ja soovi korral kohandada.